Váš prostor.
Vaše pravidla.
Postavíme rychle, kvalitně a bez stavebního povolení.
Vyberte si hrubou stavbu za dostupnou cenu – a zbytek si upravte přesně podle svých představ.
Co je Malodomek?
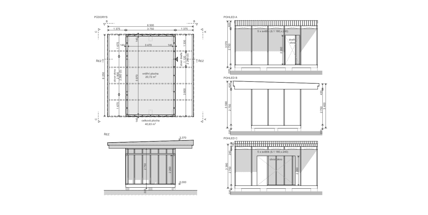
Malodomek je moderní zahradní stavba do 40 m², kterou dodáváme v podobě kvalitní hrubé dřevostavby.
Splňuje podmínky současného stavebního zákona, takže:
-
nepotřebujete stavební povolení,
-
nepotřebujete ohlášení,
-
nepotřebujete projekt.
Je to nejrychlejší způsob, jak získat místo pro práci, hobby, relax nebo hosty – bez zbytečného papírování.
Domek pro hosty, ateliér, chata, dílna nebo sauna. To, co z malodomku vytvoříte je jen na vaší představivosti.
Pro ty, kteří propadli kouzlu žít v dřevostavbě s nadčasovým designem, můžeme malodomek rozšířit na plnohodnotný rodinný dům.

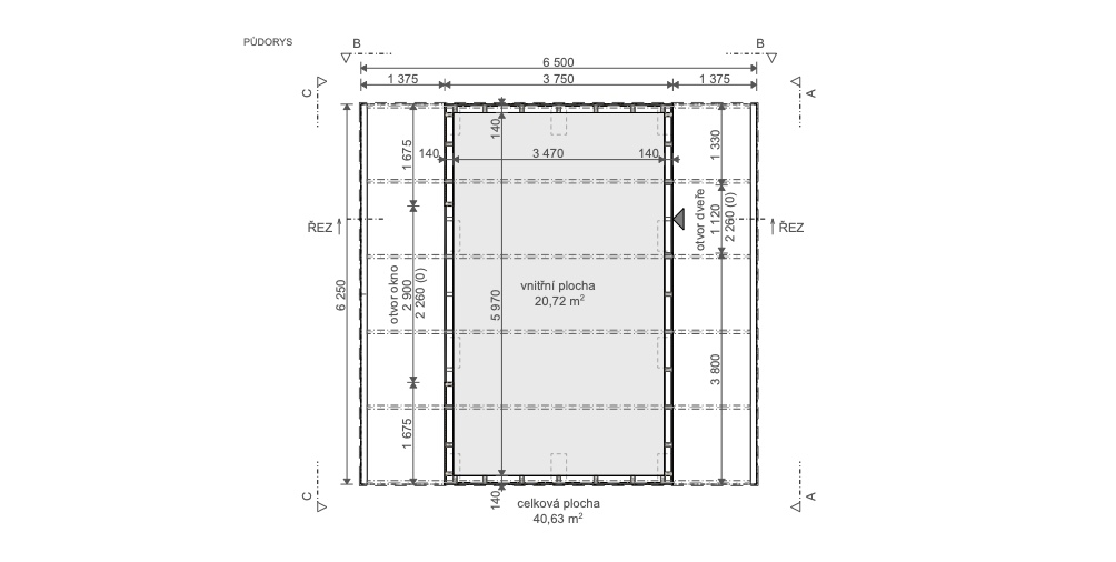
Parametry malodomku

Designová kombinace
Elegantní a designově zajímavá kombinace nabízí možnost vidět skrz objekt, aniž by tím utrpělo vaše soukromí.

Bez stavebního povolení
Základní model se zastavěnou plochou do 40 metrů čtverečných zaujme především štědrými střešními přesahy po obou stranách s okny mezi trámy.

Montovaný minidomek
Hrubá stavba se dodává ve formě montovaných panelů a střecha se dokončuje až na místě. K přesahům střech lze zvolit i přední a zadní terasu.
4 týdny dodání
Dodání je velmi rychlé, včetně montáže získáte domek za necelý měsíc!
Dokončení na míru
Zateplení, podlahy, klimatizace, nábytek, francouzská okna, vše vám dodáme.
Bez stavebního povolení
Do 40 m², jednopodlažní, designové, nepodsklepené, přesně podle zákona.
Nízká cena
Hrubou stavbu pořídíte nejlevněji na trhu. Záleží na Vaší konfiguraci.
Vyberte si variantu
STANDARD za nebo ROZŠÍŘENOU variantu za příplatek (dle vybraných položek - viz níže).
Výroba domku
Po výběru varianty začne výroba a sjednáme termín dodání. STANDARD obvykle 4 týdny, NADSTANDARD déle.
Dovezeme a smontujeme
Montáž je obvykle do 2 - 3 dní. K tomu potřebujete na vašem pozemku rovný podklad.
Rozšířené položky
Izolace a interiéry zateplení stěn, střechy, podlahy, SDK, dřevěné podlahy, intertiérové příčky, luxusní nábytek, kamna a další
Podlahy
Vynyl, dřevo, dlažba
Okna & dveře
francouzské okno, HS portál, výklopné světlíky atp.
Designový nábytek
kancelářský set, modulární police, truhlářská výroba
Klimatizace & technika
Split jednotka, rekuperace, topné panely, solární set a další
Kamna a komíny
lehká komínová sestava, kamna pro celoroční provoz
